
Guestrooms for Four People (for use by 3 or 4 people)
The hotel has two guestrooms for two people, named Katarai (Talking) and Kutsurogi (Relaxation).The spacious interior measuring of approximately 60 m2 consists of two Japanese-style bedrooms and a living room. The Japanese-style interior is decorated with zelkova, bamboo, sara, and pine wood, creating a relaxing atmosphere. The kitchen is equipped with a gas cooker with two burners. The bathroom and toilet are independent. Guests can make full use of the space in the bedrooms by putting away the futons when not in use. Two people can stay comfortably in these rooms for a long time.
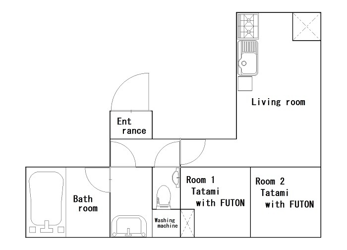
Floor plan | tatami-mat Japanese-style room x 2, to living room/dining room/kitchen, bathroom, toilet |
---|---|
Capacity | 3–4 people |


An interior decorated with traditional Japanese “SUDARE” blinds, natural wood, and a calm, authentic Japanese atmosphere.

A living and dining area furnished with a sofa.

Sliding doors can also be used to separate the living room and the tatami room.

The kitchen is fully equipped with a large refrigerator-freezer and a spacious two-burner gas stove, making cooking easy and comfortable.

Dishwashing detergent, sponges, and cloths are provided so you can start using the kitchen immediately.

A microwave and rice cooker are permanently installed and available for your use.

Handmade Japanese wall decorations crafted from rare black bamboo enhance the room’s distinctive charm.

Shelves crafted from cherry wood bring a natural touch, creating a rustic Japanese atmosphere throughout the space.


The sliding doors feature delicate cherry blossom artwork elegantly painted on thin Japanese “washi” paper."

Tatami room 1 can accommodate up to 3 FUTONs.
The number of FUTON provided will vary depending on the your group number of people.

The Japanese-style accommodation consists of two rooms separated by sliding doors.
During the day, you can open them up for a spacious feel, and at night, close them to create a private, cozy space.

The tatami rooms can be separated by sliding doors.
Fees and Charges
Accommodation fees and charges vary according to the number of people, the itinerary, and the number of nights, so please contact the hotel first with your desired dates.
Children age of 7 and older are charged at the same rate as adults. TWO CHILDREN from 0 years old to 6 yrs old are counted as ONE ADULT, as the quantity of supplies and bedding (the number of futons) they require is judged to be about same as is required by one adult.
Reservations can be made for a minimum of two nights.
Reservations for one night only are not accepted.
★Please feel free to contact us if you are interested in long-term use.★
If you wish to make a formal reservation, please submit the following email form.